
鞏義市仁源水處理材料廠
聯系人:孫經理
手機:15838253283(微信同號)
電話:0371-66557686
郵箱:1813885391@qq.com
地址:河南省鞏義市工業園區
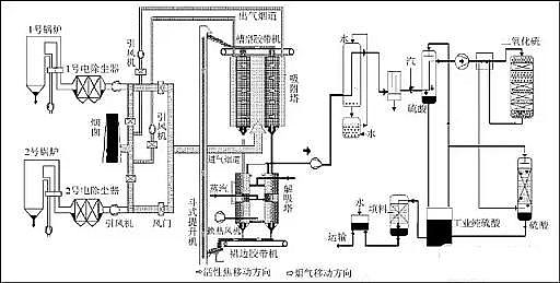
高規格柱狀活性炭廠家常見廢氣處理工藝、VOCs廢氣治理技術工藝示意
高規格柱狀活性炭生產廠家常見廢氣處理工藝、VOCs廢氣治理技術工藝示意。
01、廢氣處理工藝流程
不含塵的有機廢氣處理

煤氣處理工藝流程

酸性廢氣處理

石灰石-石膏法處理硫酸尾氣工藝流程

活性焦煙氣脫硫技術工藝流程示意

電廠脫硫塔

氧化鎂法脫硫工藝

新型垃圾焚燒雙尾氣處理系統

雙堿法脫硫系統-濕法脫硫工藝流程

濕式氧化鎂脫硫系統-煙氣脫硫技術

02、VOCs廢氣治理技術工藝詳解
VOCs廢氣治理技術——熱破壞法
熱破壞法是指直接和輔助燃燒有機氣體,也就是VOCs,或利用合適的催化劑加快VOCs的化學反應,最終達到降低有機物濃度,使其不再具有危害性的一種處理方法。


VOCs廢氣治理技術——吸附法


此外,經過氧化鐵或臭氧處理,活性炭的吸附性能將會更好,有機廢氣治理將會更加安全和有效。
VOCs廢氣治理技術——生物處理法


不同成分、濃度及氣量的氣態污染物各有其有效的生物凈化系統。生物洗滌塔適宜于處理凈化氣量較小、濃度大、易溶且生物代謝速率較低的廢氣;對于氣量大、濃度低的廢氣可采用生物過濾床;而對于負荷較高以及污染物降解后會生成酸性物質的則以生物滴濾床為好。
生物法處理有機廢氣是一項新的技術,由于反應器涉及到氣,液,固相傳質,以及生化降解過程,影響因素多而復雜,有關的理論研究及實際應用還不夠深入廣泛,許多問題需要進一步探討和研究。
一般情況下,一個完整的生物處理有機廢氣過程包括3個基本步驟:a) 有機廢氣中的有機污染物首先與水接觸,在水中可以迅速溶解;b) 在液膜中溶解的有機物,在液態濃度低的情況下,可以逐步擴散到生物膜中,進而被附著在生物膜上的微生物吸收;c) 被微生物吸收的有機廢氣,在其自身生理代謝過程中,將會被降解,最終轉化為對環境沒有損害的化合物質。
VOCs廢氣治理技術——變壓吸附分離與凈化技術
變壓吸附分離與凈化技術是利用氣體組分可吸附在固體材料上的特性,在有機廢氣與分離凈化裝置中,氣體的壓力會出現一定的變化,通過這種壓力變化來處理有機廢氣。
PSA 技術主要應用的是物理法,通過物理法來實現有機廢氣的凈化,使用材料主要是沸石分子篩。沸石分子篩,在吸附選擇性和吸附量兩方面有一定優勢。在一定溫度和壓力下,這種沸石分子篩可以吸附有機廢氣中的有機成分,然后把剩余氣體輸送到下個環節中。在吸附有機廢氣后,通過一定工序將其轉化,保持并提高吸附劑的再生能力,進而可讓吸附劑再次投入使用,然后重復上步驟工序,循環反復,直到有機廢氣得到凈化。

近年來,該技術開始在工業生產中應用,對于氣體分離有良好效果。該技術的主要優勢有:能源消耗少、成本比較低、工序操作自動化及分離凈化后混合物純度比較高、環境污染小等。使用該技術對于回收和處理有一定價值的氣體效果良好,市場發展前景廣闊,成為未來有機廢氣處理技術的發展方向。
VOCs廢氣治理技術——氧化法
對于有毒、有害,而且不需要回收的VOCs,熱氧化法是最適合的處理技術和方法。氧化法的基本原理:VOCs與O2發生氧化反應,生成CO2和H2O。
從化學反應方程式上看,該氧化反應和化學上的燃燒過程相類似,但其由于VOCs濃度比較低,在化學反應中不會產生肉眼可見的火焰。一般情況下,氧化法通過兩種方法可確保氧化反應的順利進行:a) 加熱。使含有VOCs的有機廢氣達到反應溫度;b) 使用催化劑。如果溫度比較低,則氧化反應可在催化劑表面進行。所以,有機廢氣治理的氧化法分為以下兩種方法:
a) 催化氧化法。現階段,催化氧化法使用的催化劑有兩種,即貴金屬催化劑和非貴金屬催化劑。貴金屬催化劑主要包括Pt、Pd等,它們以細顆粒形式依附在催化劑載體上,而催化劑載體通常是金屬或陶瓷蜂窩,或散裝填料;非貴金屬催化劑主要是由過渡元素金屬氧化物,比如MnO2,與粘合劑經過一定比例混合,然后制成的催化劑。為有效防止催化劑中毒后喪失催化活性,在處理前必須徹底清除可使催化劑中毒的物質,比如Pb、Zn和Hg等。如果有機廢氣中的催化劑毒物、遮蓋質無法清除,則不可使用這種催化氧化法處理VOCs;
b) 熱氧化法。熱氧化法當前分為三種:熱力燃燒式、間壁式、蓄熱式。三種方法的主要區別在于熱量回收方式。這三種方法均能催化法結合,降低化學反應的反應溫度。
熱力燃燒式熱氧化器,一般情況下是指氣體焚燒爐。這種氣體焚燒爐由助燃劑、混合區和燃燒室三部分組成。其中,助燃劑,比如天然氣、石油等,是輔助燃料,在燃燒過程中,焚燒爐內產生的熱混合區可對VOCs廢氣預熱,預熱后便可為有機廢氣的處理提供足夠空間、時間,最終實現有機廢氣的無害化處理。
在供氧充足條件下,氧化反應的反應程度——VOCs去除率——主要取決于“三T條件”:反應溫度(Temperat)、時間(Time)、湍流混合情況(Turbulence)。這“三T條件”是相互聯系的,在一定范圍內,一個條件的改善可使另外兩個條件降低。熱力燃燒式熱氧化器的缺點在于:輔助燃料價格高,導致裝置操作費用比較高。

直燃式廢氣處理爐
所需溫度:700-800℃
對應廢氣種類:所有
廢氣凈化效率在99.8%以上
搭配廢氣機熱回收系統可有效降低工廠營運成本
催化式廢氣處理爐(RCO)
所需溫度:300-400℃
根據廢氣濃度而啟動的自燃性
系統設計利用前處理劑和觸媒清潔可延長設備使用年限
可在前端配置各種吸附材
RCO處理技術特別適用于熱回收率需求高的場合,也適用于同一生產線上,因產品不同,廢氣成分經常發生變化或廢氣濃度波動較大的場合。尤其適用于需要熱能回收的企業或烘干線廢氣處理,可將能源回收用于烘干線,從而達到節約能源的目的。
優點:工藝流程簡單、設備緊湊、運行可靠;凈化效率高,一般均可達98%以上;與RTO相比燃燒溫度低;一次性投資低,運行費用低,其熱回收效率一般均可達85%以上;整個過程無廢水產生,凈化過程不產生NOx等二次污染;RCO凈化設備可與烘房配套使用,凈化后的氣體可直接回用到烘房利用,達到節能減排的目的;
缺點:催化燃燒裝置僅適用含低沸點有機成分、灰分含量低的有機廢氣的處理,對含油煙等粘性物質的廢氣處理則不宜采用,催化劑宜中毒;處理有機廢氣濃度在20%以下。
蓄熱式廢氣處理爐(RTO)
所需溫度:800-900℃
低于500ppm的甲苯濃度也可以啟動自燃性系統設計
可實現與RCO配合使用
適用于大風量、低濃度,適用于有機廢氣濃度在100—20000ppm。其操作費用低,有機廢氣濃度在450ppm以上時,RTO裝置不需添加輔助燃料;凈化率高,兩床式RTO凈化率能達到98%以上,三床式RTO凈化率能達到99%以上,并且不產生NOx等二次污染;全自動控制、操作簡單;安全性高。
優點:在處理大流量低濃度的有機廢氣時,運行成本非常低。
缺點:較高的一次性投資,燃燒溫度較高,不適合處理高濃度的有機廢氣,有很多運動部件,需要較多的維護工作。
圖為RTO(蓄熱式熱力焚燒技術)濃縮及廢熱回收系統,可將低濃度、大風量的VOCs廢氣濃縮為高濃度、小風量的廢氣,然后高溫燃燒,并將儲熱體的熱量重新回收,利用在廢氣預熱和熱轉換設備上。

回收式熱力焚燒系統

TNV系統由三大部分組成:廢氣預熱及焚燒系統、循環風供熱系統、新風換熱系統。
廢氣焚燒集中供熱裝置的特點包括:有機廢氣在燃燒室的逗留時間為1~2s;有機廢氣分解率大于99%;熱回收率可達76%;燃燒器輸出的調節比可達26∶1,最高可達40∶1。
缺點:在處理低濃度有機廢氣時,運行成本較高;管式熱交換器只是在連續運行時,才有較長的壽命。
VOCs廢氣治理技術——冷凝回收法
在不同溫度下,有機物質的飽和度不同,冷凝回收法便是利用有機物這一特點來發揮作用,通過降低或提高系統壓力,把處于蒸汽環境中的有機物質通過冷凝方式提取出來。冷凝提取后,有機廢氣便可得到比較高的凈化。其缺點是操作難度比較大,在常溫下也不容易用冷卻水來完成,需要給冷凝水降溫,所以需要較多費用。

這種處理方法主要適用于濃度高且溫度比較低的有機廢氣處理。通常適用于VOCs含量高(百分之幾),氣體量較小的有機廢氣的回收處理,由于大部分VOCs是易燃易爆氣體,受到爆炸極限的限制,氣體中的VOCs含量不會太高,所以要達到較高的回收率,需采用很低溫度的冷凝介質或高壓措施,這勢必會增加設備投資和處理成本,因此,該技術一般是作為一級處理技術并與其它技術結合使用。
更多高規格柱狀活性炭生產廠家詳情點擊:http://www.tradester.cn/